500 001 394
biuro@kbi.krakow.pl
O nas
Oferta
Inwestycje
Finansowanie
Wykończenie
Kontakt
Dom Przy Bieżanowskiej
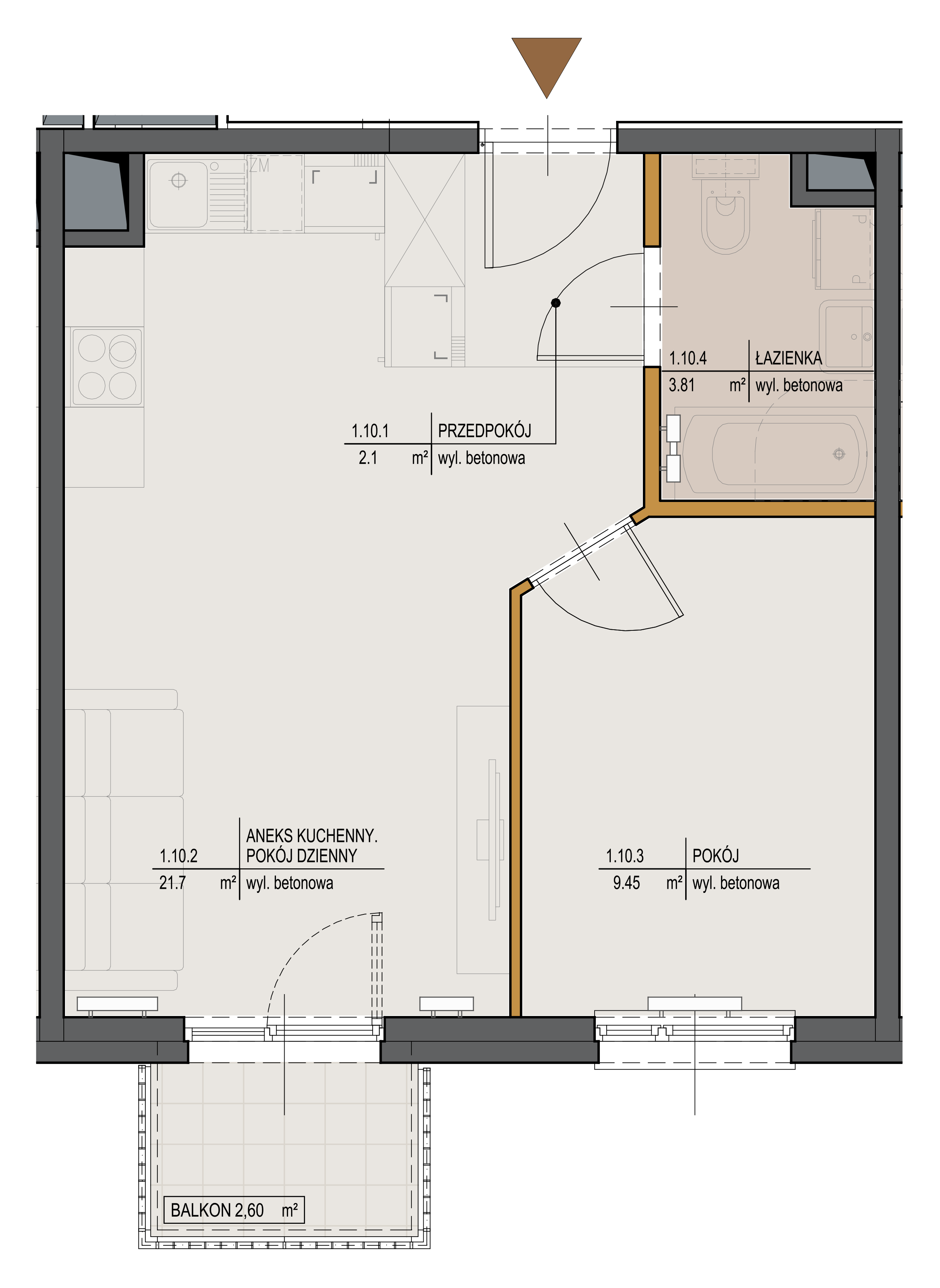
Piętro 1, Mieszkanie nr 10
WOLNE
Mieszkanie nr 10
2 pokoje, Piętro 1
Salon z an. kuch.
21,56 m
2
Łazienka z WC
3,81 m
2
Przedpokój
2,10 m
2
Pokój
9,45 m
2
Metraż
37,06 m
2
Duży balkon o powierzchni 5,50 m2. Istnieje możliwość kupienia komórki lokatorskiej w cenie 3000 zł/1 m2.
Cena lokalu
489 609 zł
Cena za m
2
11 000 zł
Pobierz rzut lokalu
Zarezewuj
Wyszukiwarka
Zobacz pozostałe mieszkania
Wybierz piętro:
-1
0
1
2