500 001 394
biuro@kbi.krakow.pl
O nas
Oferta
Inwestycje
Finansowanie
Wykończenie
Kontakt
Dom Przy Bieżanowskiej
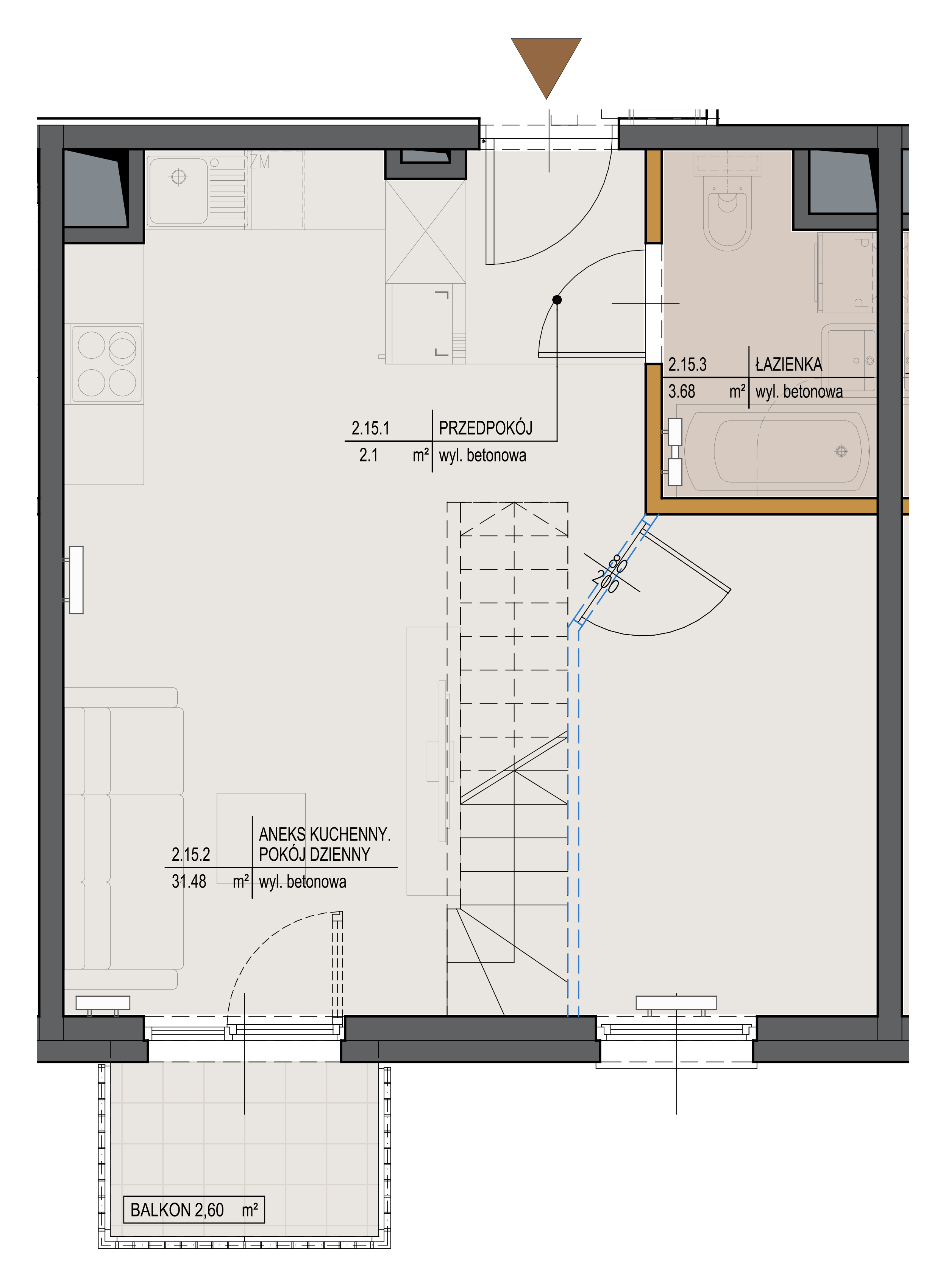
Piętro 2, Mieszkanie nr 15
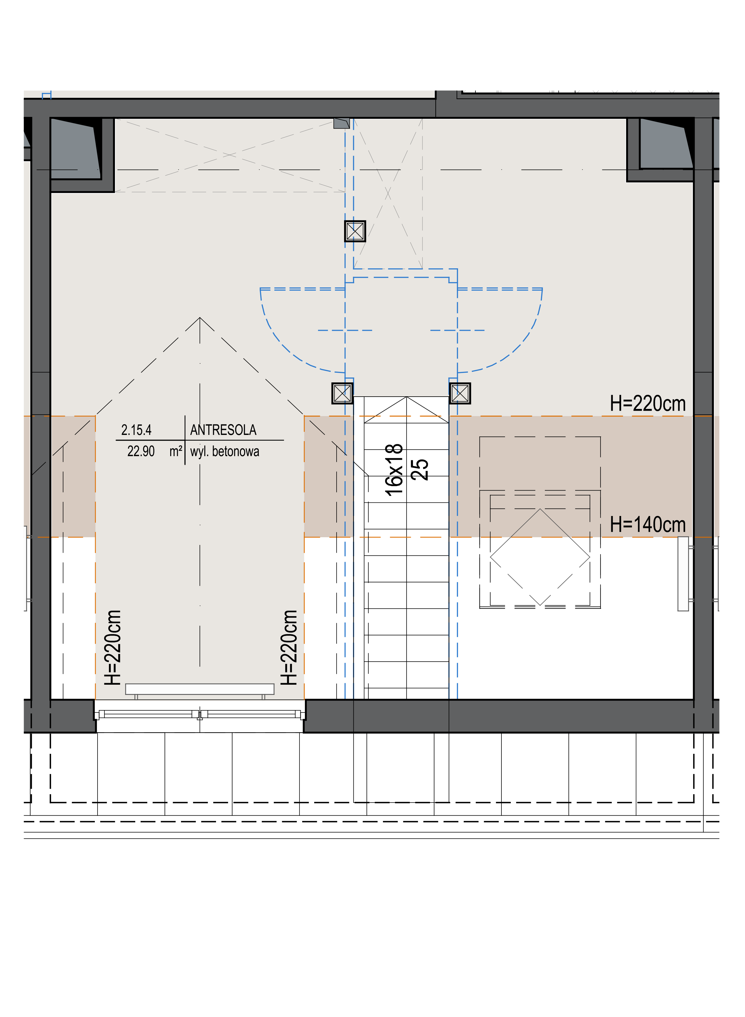
Poziom 1
Poziom 2
WOLNE
Mieszkanie nr 15
1,2 pokoje, Piętro 2
Salon z an. kuch.
31,48 m
2
Łazienka z WC
3,68 m
2
Przedpokój
2,10 m
2
Metraż
60,16 m
2
Duży balkon o powierzchni 5,50 m2. Istnieje możliwość kupienia komórki lokatorskiej w cenie 3000 zł/1 m2.
Cena lokalu
489 609 zł
Cena za m
2
11 000 zł
Pobierz rzut lokalu
Zarezewuj
Wyszukiwarka
Zobacz pozostałe mieszkania
Wybierz piętro:
-1
0
1
2